SCHRÄGSITZSCHMUTZFÄNGER MIT SIEBKORB

IN PP / GFK  UND GFK / CSS GEFERTIGT DN 150 BIS DN 300



Schmutzfänger werden zur Beseitigung von Störstoffen in strömenden Flüssigkeiten eingesetzt, um Verstopfungen und Ausfall von Anlagenkomponenten, z.B. Pumpen, Ventilen, Düsen- und Sprüheinrichtungen zu vermeiden. Die Auswahl der jeweiligen Lochungen/Maschenweite der PP-Siebkorbfilter richtet sich nach der Schmutzpartikelgröße.















Schrägsitzschmutzfänger Inliner PP / GFK beschichtet in der:



DN200
Auslegungsdruck: 6 bar
mit DIN-Festflanschstutzen d150, DN160

DN200
Auslegungsdruck: 10 bar
mit DIN-Festflanschstutzen d150, DN160

DN400
Auslegungsdruck: 4 bar
mit DIN-Festflanschstutzen d315, DN300

Auslegungstemperatur:
max. 40°C


 

Schrägsitzschmutzfänger  GFK / CSS*** :



DN200
Auslegungsdruck: 6 bar
mit DIN-Festflanschstutzen d150, DN160

DN400
Auslegungsdruck: 4 bar
mit DIN-Festflanschstutzen d315, DN300

Auslegungstemperatur:
max. 40°C

*** Chemieschutzschicht


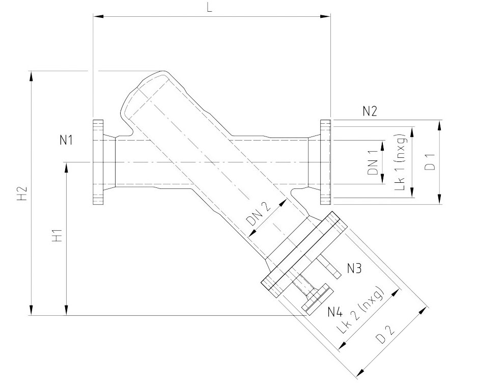
TECHNISCHE ZEICHNUNG






Stutzenbelegung   SIebkorb
Stutzen Beschreibung Menge Bemerkung Typ w-t***
N1 Flüssigkeitseintritt 1 wahlweise siehe oben 1 Rv 2,0 - 3,5 mm
N2 Flüssigkeitseintritt 1 wahlweise siehe oben 2 RV 3,0 - 5,0 mm
N3 Siebkorbentnahme 1 mit Deckel 3 RV 4,0 - 6,0 mm
N4 Entleerung 1 mit Blindflansch 4 Rv 5,0 - 7,0 mm
 
*** w = Lochweite (Ø), t = Teilung (Lochabstand)







TECHNISCHE DATEN




  DN 150 / DN 200 DN 300 / DN 400
Baugröße TYP 1 TYP 2
L 800 1300
H1 475 725
H2 310 570
DN1 DN 150 / Ø160 DN 300 / Ø315
LK1
n x g
Ø240
8 x Ø22
Ø400
12 x Ø22
D1 Ø285 Ø445
DN2 DN 200 / Ø22 DN 400 / Ø400
LK2
n x g
Ø295
8 x Ø22
Ø515
16 x Ø26
D2 Ø340 Ø565
 
Technische Änderungen vorbehalten





SIEBKORB VARIANTEN



Die Filtereinsätze aus PP, entfernen Verunreinigungen aus den Flüssigkeiten und bestehen aus Lochplatten, wahlweise mit nachstehend genannten Perforierungen.
Das mit Schmutzfracht belastete Medium, durchströmt den Filtereinsatz von innen nach außen. Die Partikel verbleiben im Filtersiebkorb und können mit diesem entfernt werden.

Es stehen vier Varianten zur Auswahl und können wahlweise bei der Bestellung spezifiziert werden:

Variante 1:
Lochweite 2,0 mm, Lochteilung 3,5 mm

Variante 2:
Lochweite 3,0 mm, Lochteilung 5 mm

Variante 3:
Lochweite 4,0 mm, Lochteilung 6 mm

Variante 4:
Lochweite 5,0 mm, Lochteilung 7 mm
 




LIEFERPROGRAMM SCHRÄGSITZSCHMUTZFÄNGER





LIEFERPROGRAMM AUSFÜHRUNG PP / GFK
Gehäuse Anschlussgröße Werkstoff PN Lochung Volumen Siebkorb Artikelnummer
DN 200 Ø160 DN150 PP / GFK 6 Rv 2,0 - 3,5 5,2 L Y-PPFRP-200/150-PN6-1
DN 200 Ø160 DN150 PP / GFK 6 Rv 3,0 - 5,0 5,2 L Y-PPFRP-200/150-PN6-2
DN 200 Ø160 DN150 PP / GFK 6 Rv 4,0 - 6,0 5,2 L Y-PPFRP-200/150-PN6-3
DN 200 Ø160 DN150 PP / GFK 6 Rv 5,0 - 7,0 5,2 L Y-PPFRP-200/150-PN6-4
DN 200 Ø160 DN150 PP / GFK 10 Rv 2,0 - 3,5 5,2 L Y-PPFRP-200/150-PN10-1
DN 200 Ø160 DN150 PP / GFK 10 Rv 3,0 - 5,0 5,2 L Y-PPFRP-200/150-PN10-2
DN 200 Ø160 DN150 PP / GFK 10 Rv 4,0 - 6,0 5,2 L Y-PPFRP-200/150-PN10-3
DN 200 Ø160 DN150 PP / GFK 10 Rv 5,0 - 7,0 5,2 L Y-PPFRP-200/150-PN10-4
DN 400 Ø315 DN300 PP / GFK 4 Rv 2,0 - 3,5 35,5 L Y-PPFRP-400/300-PN4-1
DN 400 Ø315 DN300 PP / GFK 4 Rv 3,0 - 5,0 35,5 L Y-PPFRP-400/300-PN4-2
DN 400 Ø315 DN300 PP / GFK 4 Rv 4,0 - 6,0 35,5 L Y-PPFRP-400/300-PN4-3
DN 400 Ø315 DN300 PP / GFK 4 Rv 5,0 - 7,0 35,5 L Y-PPFRP-400/300-PN4-4
LIEFERPROGRAMM AUSFÜHRUNG GFK / CSS
Gehäuse Anschlussgröße Werkstoff PN Lochung Volumen Siebkorb Artikelnummer
DN 200 Ø160 DN150 GFK / CSS 6 Rv 2,0 - 3,5 5,2 L Y-FRP-200/150-PN6-1
DN 200 Ø160 DN150 GFK / CSS 6 Rv 3,0 - 5,0 5,2 L Y-FRP-200/150-PN6-2
DN 200 Ø160 DN150 GFK / CSS 6 Rv 4,0 - 6,0 5,2 L Y-FRP-200/150-PN6-3
DN 200 Ø160 DN150 GFK / CSS 6 Rv 5,0 - 7,0 5,2 L Y-FRP-200/150-PN6-4
DN 400 Ø1315 DN300 GFK / CSS 4 Rv 2,0 - 3,5 35,5 L Y-FRP-400/300-PN4-1
DN 400 Ø1315 DN300 GFK / CSS 4 Rv 3,0 - 5,0 35,5 L Y-FRP-400/300-PN4-2
DN 400 Ø1315 DN300 GFK / CSS 4 Rv 4,0 - 6,0 35,5 L Y-FRP-400/300-PN4-3
DN 400 Ø1315 DN300 GFK / CSS 4 Rv 5,0 - 7,0 35,5 L Y-FRP-400/300-PN4-4
 
Andere Ausführungen auf Anfrage möglich. Senden Sie uns ihre Anfrage

Technische Änderungen vorbehalten






Ihre Wünsche, unsere Lösungen - Ein umfangreiches Lieferprogramm nach Maß.



Kunststoffrohrsysteme


Rohrsysteme aus Kunststoff im Überblick
Technische Informationen ABS Rohrsysteme
Technische Informationen PVC  U Rohrsysteme
Technische Informationen PVC  U Transparent Rohrsysteme
Technische Informationen PVC  C Rohrsysteme
Technische Informationen PP Rohrsysteme
Technische Informationen PP-R Rohrsysteme
Technische Informationen PE Rohrsysteme
Technische Informationen PVDF Rohrsysteme

Chemiedur


Technische Informationen UP-GF (GFK) Rohrsysteme
UP-GF (GFK) Rohre
UP-GF (GFK) Formteile und Verbindungen
UP-GF-PP (GFK) Formteile und Verbindungen
UP-GF (GFK) Klebebunde
UP-GF (GFK) Losflansche
PP/GFK Schmutzfänger DN 200 - DN 500
GFK/CSS  Schmutzfänger DN 200 - DN 500
PP/GFK  Schrägsitzschmutzfänger DN 200 - DN 400
GFK und PP/GFK Mannlochdeckel DN 500 - DN 800


Kunststoffrohre


Rohrzuschnitssrechner
Sägehinweise Kunststoffrohre
Kunststoffrohr - Restebörse
Normung - Kunststoffrohre und Formteile
PVC U Rohrabweichungen
Druckverlust PVCU, PVCC und ABS Rohrsysteme
Unterschied Rp, R und G Gewinde
Schraubenlängen für Flanschverbindungen
Dichtungen: PTFE, NBR, FKM, EPDM

Kunststoffarmaturen


PVC U Transparent Kugelhahn
Membranventile
Blockventile
Absperrklappen
Nadelventile aus Kunststoff



 

Kunststoffarmaturen nach ATEX


ATEX-Leitlinien allgemein
Neue EU Richtlinie 2014/34/EU
Kunststoffarmaturen in Ex-Zonen
Schmutzfänger PP-EL DN 15 - DN 50
Rückschlagventil PP-EL DN 15 - DN 50
Schrägsitzventil PP-EL DN 15 - DN 50

Kleben von Kunststoffrohren


Klebeanleitung
Klebeanleitung per Video

Kunststoffschweißen


Hinweise zum Extrusionsschweissen


Gitterroste / Tragroste


GFK Gitterroste
Gitterroste PP -el elektrisch Leitfähig
Profiltragroste PP -el elektrisch Leitfähig


Lüftungsformteile


Lüftungstechnik
Revisionsdeckel für Lüftungskanäle
Luftstromüberwachung


Chemieschlauch


PVC Transparentschlauch mit Textileinlage


Industrie- und Chemiebehälter


Dosierbehälter-Konfigurator
Dosierbehälter  und Überbehälter 35 – 1000 Liter
Salzlösebehälter 60 -5000 Liter
Lagerbehälter & Bottiche
Lagerbehälter für Wasser
Sicherheits- und Auffangwannen
Lieferprogramm Industriebehälter
Dosierbehälter mit Rührwerk
Rührwerk für Dosierbehälter
Dosierbehälter mit Anbauvarianten
Dosierbehälter aus Plattenmaterial
Chemiebehälter - Kundenlösungen
Dosierbehälter mit Füllstandsanzeigen
GFK Behälter für den schweren Chemieeinsatz



 

IBC TANK / CONTAINER


IBC Schraubdeckel DN 150/DN 200
IBC Adapter aus PE
IBC Adapter aus PP
MULTI FLEX BLOCK für IBC Bulk Container
Sauglanze für MULTI FLEX BLOCK und IBC Bulk Container
Heizhaube für IBC Bulk Container

Anwendungsbeispiele
MULTI FLEX BLOCK


Legionellen in Rückkühlwerken


Anbauteile für den Behälterbau


Säuredunstscheider
CO2 - Absorber
Fallbeispiel CO2 - Absorber
Mannlochdeckel
Revisionsstutzen
Blockflansche
Klöpperboden aus PP-CPK, PE-SK, PVDF-geätzt, PVC U und PVC-C


Filtergehäuse und Filterkerzen


PENTEK 3G Slime Line Gehäuse
PENTEK 3G Standard Filtergehäuse
PENTEK Big Blue Filtergehäuse
PENTEK PP Hochtemperatur Filtergehäuse
PENTEK PP Natur Filtergehäuse
PENTEK Filterbeutel für Big Blue Filtergehäuse
PENTEK Filtereinsätze für Oberflächenfiltration
PENTEK Filtereinsätze für Tiefenfiltration
PENTEK Filtereinsätze mit Aktivkohle
CINTROPUR Filtersysteme
CINTROPUR Wasserfilter
Enthärtungsanlage KAWK
Heizungswasser Umkehrosmose INDUWA


Flansch-Konfigurator


Blindflansch-Losflansch-Rechteckflansch

Chemische Beständigkeit


Beständigkeitsliste für Rohrsystemen aus Kunststoff

Kunststoffapparatebau


Tropfenabscheider aus PVC U, PP, PPs, PE und Verbundwerkstoffen

 

Kunststoff-Drehteile


Einlegteile
Einschraubteile
Gewindefittings
Verschraubungen

Kunststoff-Frästeile


Los- und Blindflansche aus Platten


Statische Mischer


Statische Mischer aus Kunststoff


Kompensatoren


Kompensatoren für Kunststoffrohrsysteme


Schmutzfänger


Einzel- und Doppelschmutzfänger
Topfschmutzfänger DN 300
Schrägsitzschmutzfänger DN 500


Durchflussmesser


Schwebekörperdurchflussmesser
Konfigurator für Durchflussmesser
Messwertgeber für Schwebekörperdurchflussmesser
Nebenstrom - Durchflussmesser


Filterpressen


Laborfilterpresse


Spritzgussteile


Schaber aus PE für Filterpressen


Kwerk Praxis Blog


Hier bloggt das Kwerk Team aus der Praxis


Westerwald - Spezial


Westerwälder Säurekitt


Kwerk GmbH International


Unsere Webseite in Englisch


Partnerschaft auf höchstem Niveau


 
         
 
 
 
       
 
 
         
 
ONLINE-TOOLS
ANGEBOT ANFORDERN
PROJEKT-ANFRAGE STARTEN